Cleats

Purlin Cleats and Side Rail Cleats

Purlin cleats are designed as strong, durable fixings to connect purlins to rafters. Side rail cleats are designed for attaching side rails to external cladding systems.

voestalpine Metsec standard purlin cleats are suitable for all normal applications on purlins and side rail systems.

For abnormal loadings in tiled roof/steep slopes, cleats should be stiffened.

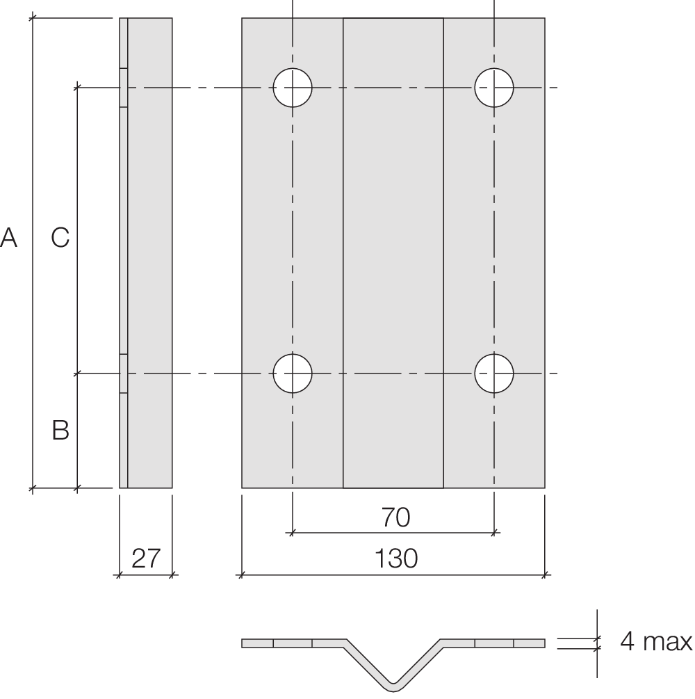
Cleat ref.AB*CDEF
142130505635656
172160508635656
2021905011635656
2322205014635658
2622505017635658
3022806019540758
3423206023540758

All holes 18mm diameter

* Variable height cleats can be supplied if required. Dimension B = 142 maximum (142-232 range).

Series 142–262 weld-on cleats

Finish
1. Black bare metal

Series 142-262 bolt-on cleats

Finish
1. 6mm pre-galvanised
2. 8mm hot dipped galvanised

Series 302 and 342 weld-on or bolt-on cleat

Finish
1. Black bare metal for welding or bolting
2. Hot dipped galvanised for bolting

Trimmer cleats

Cleat ref.ABCD
TC 1421265610096
TC 17213686130106
TC 202136116160106
TC 232142146190112
TC 262146176220116
TC 302156195239126
TC 342166235279136

All trimmer cleats are 3mm galvanised steel, suitable for compatible depths of Z-section and C-section, i.e. 202. Z. to 202. C. etc.

Download our purlin technical manual for more information.